DRC Head Offices

Lubumbashi,  D.R.Congo

. . .

 

ENG

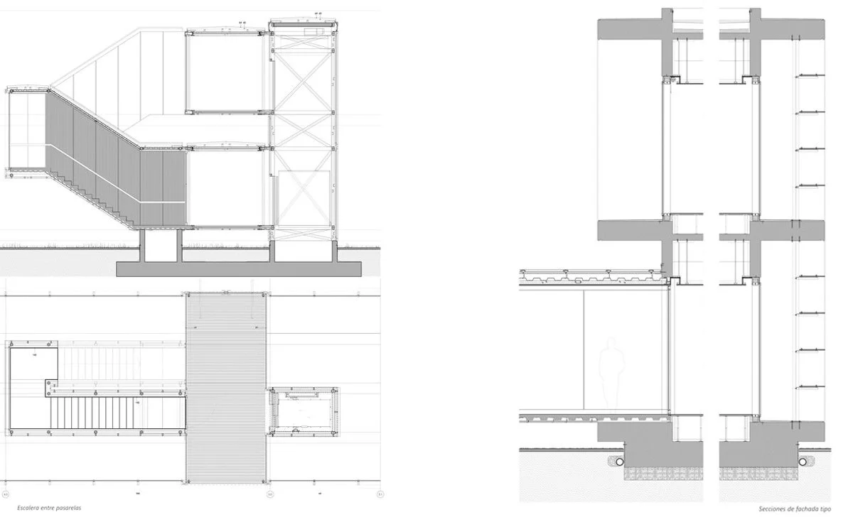
The project defines the structure of an office building to be located in Lubumbashi (Democratic Republic of the Congo). It is an office building complex formed by the main building and several other secondary structures. The main building has two nearly twin structures and each one is a two-story structure (ground floor plus first floor). Their aerial view is a rectangle of 58.5 x 18.6 meters for each structure and a rectangle of 58.5 x 41.7 meters for the whole.

ESP

El proyecto define la estructura de un edificio de oficinas que se ubicará en Lubumbashi (República Democrática del Congo). Se trata de un complejo de edificios de oficinas formado por el edificio principal y otras estructuras secundarias. El edificio principal tiene dos estructuras casi gemelas y cada una de ellas es de dos pisos (planta baja más primer piso).

 

. . .

I   Location: Lubumbashi, D.R.Congo    I    Type: Comission    I    Client: Private    I    Year: 2014    I    Size: 4.400m2c    I    Status: Detail Design   I